Kamineinsatz Edilkamin WINDO2 75
Edilkamin
50 Jahre Erfahrung und die Fähigkeit zu wegweisender Planung, haben dem Unternehmen die Wertschätzung anspruchsvoller Kunden eingebracht, die nach stilistisch innovativen Produkten suchen. Edilkamin legt seit jeher großen Wert auf Forschung, technologische Entwicklung und immer bessere Produktqualität. Die Produkte von Edilkamin zeichen sich zudem durch Sparsamkeit, Effizienz und daher durch kostengünstiges Heizen aus. Die Verbindung von Tradition und moderner Technologie macht den italienischen Hersteller zu einem führenden Unternehmen in seinem Sektor.
WINDO2
Dieser eindrucksvolle Kamineinsatz eignet sich hervorragend für die Renovierung alter, offener Kamine oder für den Bau eines neuen Kamins.
Der Brennraum ist aus Vermiculit gefertigt.
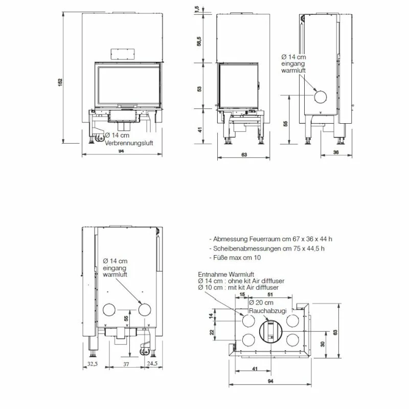
Der WINDO2 ist ein Ecken Kamineinsatz der mit seiner spektakulären Eck-Verglasung einen eindrucksvollen Blick auf die Flammen im Innenraum erlaubt. Die Schiebetür im Ecken Design wird durch die integrierte Glaßspülung sauber gehalten.
Optional für den WINDO2 ist das AIR DIFFUSER KIT für die Kanalisierung der Warmluft verfügbar. Der WINDO2 ist sowohl mit natürlicher Konvektion als auch mit Gebläselüftung zu betreiben.
Das Besondere am WINDO2 ist, dass die Glastür sowohl nach oben geschoben als auch zur Seite geöffnet werden kann, dies erleichtert die Reinigung enorm.
S.C.P – Die Revolution in der Verbrennungstechnik
Ein innovatives, vorteilhaftes Verbrennungssystem, das für sauberere Abgase und eine größere Wärmeausbeute sorgt. Nach der Primärverbrennung wird Die Luft zur Nachverbrennung in den Feuerraum eingeleitet, um Schadstoffe abzubauen und weitere Wärme zurückzugewinnen.
Technische Daten
- Maße (cm): B 94 x H 150 x T 63
- Brennraum (cm): B 67 x H 44 x T 36
- Nutzleistung kW 13,2
- Wirkungsgrad % 84,6
- Brennstoffverbrauch kg/h 3,3
- Gesamtgewicht kg 336
- Beheizbares Vol. m³ 345
Zertifizierungen
- BImSchV 1. und 2. Stufe
- CE Zeichen
- EN 13229
- Österreich 15a B- VG
- Schweiz nach VK















Rezensionen
Es gibt noch keine Rezensionen.